Appartamento 5 vani in vendita


Località

GROSSETO

Zona

POGGIALE

Richiesta

410.000€ (trattabile)

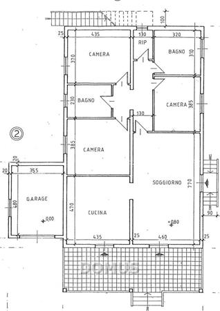
Descrizione immobile

TRA GROSSETO E IL MARE VENDESI VILLA UNIFAMILIARE CON AMPIO GIARDINO COMPOSTA DI AMPIA VERANDA D'INGRESSO, SOGGIORNO, CUCINA VIVIBILE, DISIMPEGNO CON TRE CAMERE, DUE BAGNI FINESTRATI E RIPOSTIGLIO CON FINESTRA. L'IMMOBILE E' CORREDATO DI GARAGE, AMPIO GIARDINO E SOTTOTETTO AL RUSTICO CON INGRESSO DIRETTO DALL'ESTERNO (OTTIMO PER POSSIBILE AMPLIAMENTO). LIBERO IN PRONTA CONSEGNA. 


Caratteristiche

130 m2
5 vani
piano R
garage
giardino
mansarda
classe EPI : N.D.
indice EPgl,nren : 156,43

Contatti

DOMUS

Rif: GC-1012

>

Richiesta informazioni