Appartamento 4 vani in vendita


Località

GROSSETO

Zona

BARBANELLA

Richiesta

160.000€

Descrizione immobile

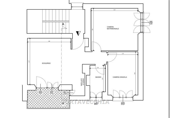
Appartamento posto al secondo piano senza ascensore in ottimo stato composto da ingresso, soggiorno con angolo cottura e terrazzo, camera matrimoniale , camera singola e bagno con doccia e finestra. Cantina al piano seminterrato.


Caratteristiche

70 m2
3,5 vani
piano 2
balconi
classe EPI : N.D.
indice EPI in definizione

Contatti

PORTAVECCHIA

Rif: GC-

>

Richiesta informazioni