Appartamento 6 vani in vendita


Località

GROSSETO

Zona

PIZZETTI

Richiesta

390.000€

Descrizione immobile

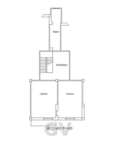
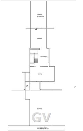
In contesto signorile, splendido terratetto con ingresso indipendente da corte piastrellata. L’immobile si sviluppa su più livelli ed è così composto: Piano terra: soggiorno con camino, ampia cucina abitabile con accesso diretto al giardino di proprietà e due ripostigli/lavanderia. Primo piano: ulteriore ampio soggiorno con terrazza abitabile, camera matrimoniale con bagno privato e terrazzo (con possibilità di ripristinare la cucina). Secondo piano: due spaziose camere matrimoniali di cui una con balcone ed un elegante bagno finestrato. La proprietà, ristrutturata negli impianti, infissi nuovi, dispone di bagni nuovi, aria condizionata nelle camere .


Caratteristiche

180 m2
6 vani
2 bagni
piano T/T
giardino
balconi
classe EPI : N.D.
indice EPI in definizione

>

Richiesta informazioni