Appartamento 5 vani in vendita


Località

BRACCAGNI

Zona

CENTRO

Richiesta

210.000€ (trattabile)

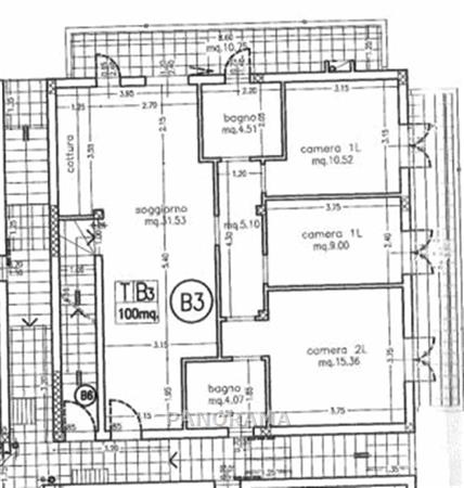
Descrizione immobile

BRACCAGNI In complesso residenziale di recente costruzione, proponiamo la vendita di appartamento al piano terra, con ingresso indipendente composto da ampio soggiorno con parete cottura a vista, balcone di servizio ampio, disimpegno notte con tre camere da letto con balcone e due bagni. Dal soggiorno si accede tramite una comoda scala in muratura alla taverna finestrata avente anche ingresso esterno da portone blindato e collegata internamente al garage. Ottime rifiniture interne. Disponibile velocemente.


Caratteristiche

100 m2
5 vani
2 bagni
piano TERRA
garage
balconi
taverna
classe EPI : N.D.
indice EPI in definizione

Contatti

PANORAMA

Rif: GC-2195PI

>

Richiesta informazioni