Appartamento 4 vani in vendita


Località

GROSSETO

Zona

AURELIA NORD

Richiesta

185.000€

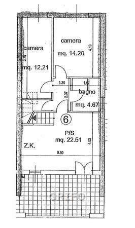
Descrizione immobile

Localita' Rugginosa Appartamento in villetta a schiera posto al 1° piano e composta da terrazzo di ingresso, soggiorno con angolo cottura, disimpegno notte, camera matrimoniale, camera singola, bagno con finestra e ripostiglio collegata da scala interna al  piano superiore troviamo un locale in deposito occasionale con tenditoio coperto a corredo un locale uso cantina la piano seminterrato e un posto auto scoperto al piano terra.


Caratteristiche

66 m2
3,5 vani
1 bagni
piano 1
balconi
mansarda
classe EPI : N.D.
indice EPgl,nren : 121

Contatti

GRIFO

Rif: GC-403G

>

Richiesta informazioni